Our latest projects

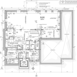
XX Hillholm Blvd
Richmond Hill, ONBasement and Second suite permit with detailed construction drawings
About Us
At Artis Studio, we believe that great design goes beyond aesthetics — it’s about creating meaningful, sustainable spaces that serve and inspire. Founded by Amit Singh, a seasoned designer registered with the Ontario Association of Architects (OAA) and the Ministry of Municipal Affairs and Housing (MMAH), our studio brings deep expertise and a personal approach to every project.
Read moreSustainablity
What sets Artis Studio apart is our unwavering belief in creating sustainable, value-driven spaces. We approach each project not as a template, but as a unique opportunity to craft something meaningful. Whether it’s a custom home, a small building, or a complex renovation, we offer tailor-made solutions that respond to the specific needs, aspirations, and budgets of our clients.
Read moreClient Relations
Our team is known for being approachable, helpful, and solution-oriented. We don’t just design; we collaborate. We ask the right questions, listen carefully, and work closely with homeowners, contractors, and municipalities to ensure a smooth and successful project outcome. At Artis Studio, design is more than a profession — it’s a responsibility.
Read more

